Kyrkogårdspaviljongen
Jury’s statement
This low-key building slips effortlessly into the context of the site. With its glazed façade, it reflects its surroundings, history and people, making visitors an integral part of the context.
The interior is organised to perfectly fulfil the building’s intentions and requirements. Robust workshop space combines with offices, an intimate garden room and a place of worship, weaving the profane and the spiritual together. The feel and beauty of wood envelops us in the ceilings, walls and floors.
With fine precision and detailing throughout, the wood makes its presence felt on every level, from the spatial to the human.
The project expands the art of working and building with wood. The contemporary end grain floor intersects with the modern panelled wall, which in turn meets a ceiling of closely spaced glulam beams. The wood stands out in all sorts of ways through the variation in its materiality and structure. Modern technology has enabled the creation of an artisan building for our time.

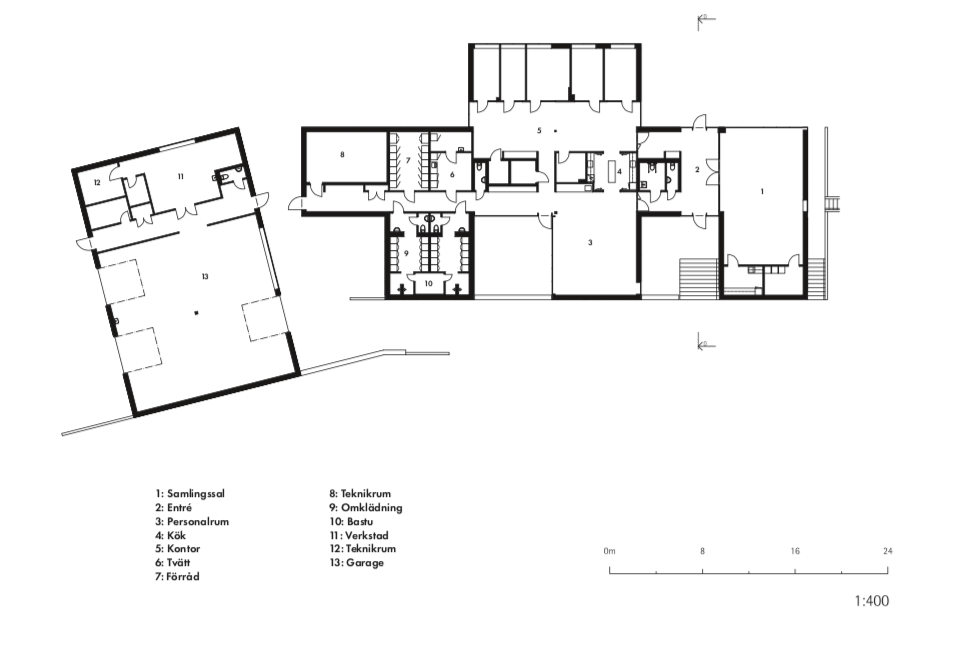
Floor plan

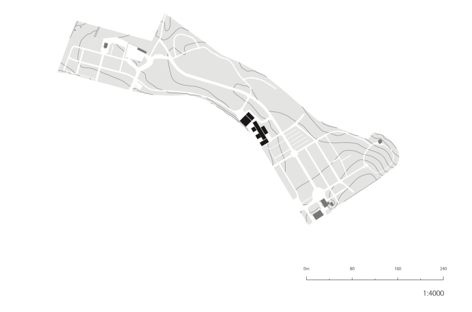
Site layout plan